Visualisierung: archlab
Erdgeschoß: freier Grundriß
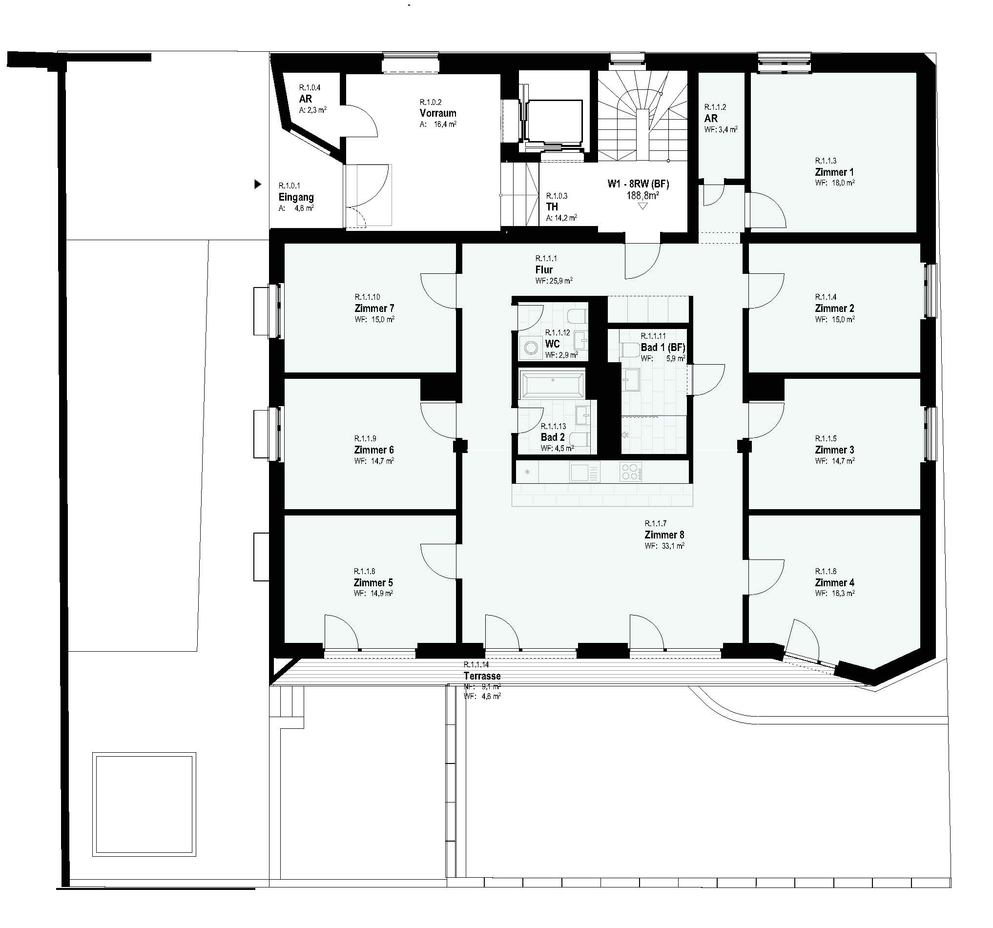
Erdgeschoß: Nutzung als WG-Wohnung
Erdgeschoß: Nutzung als Familienwohnung
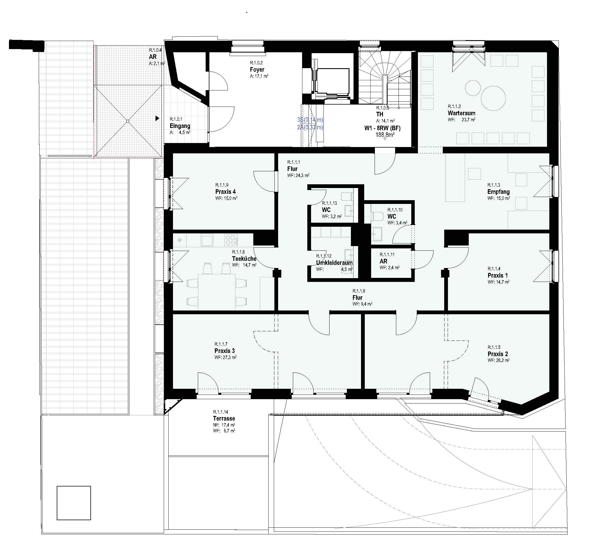
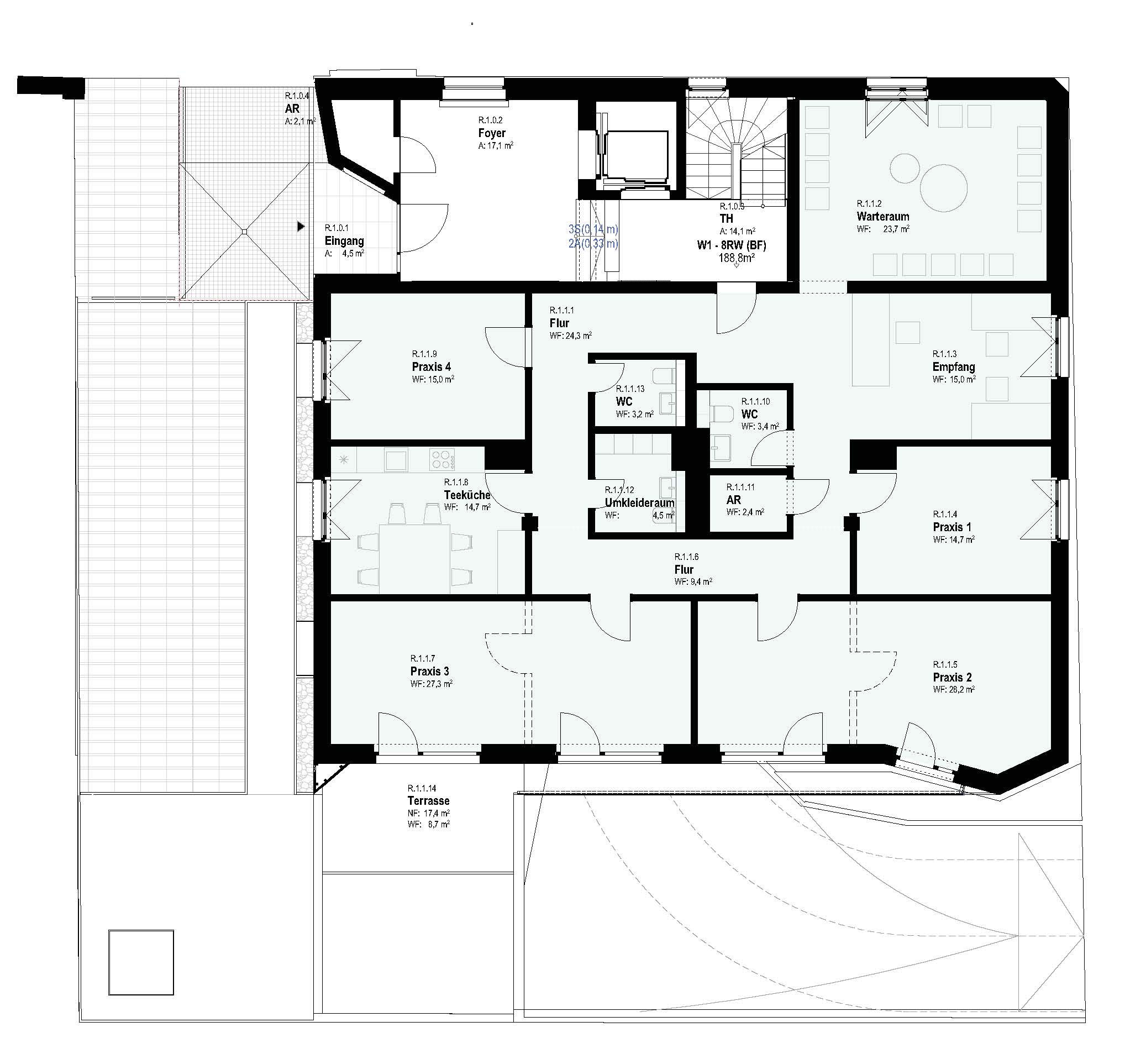
Erdgeschoß: Nutzung als Arztpraxis
Floßhof
Neubau Mehrfamilienhaus
Dresden, 2019