Wettbewerb Gedenkstätte Sachsenburg

Ideenwettbewerb zum Umgestaltung der Kommandantenvilla der Gedänkstätte Konzentrationslager Sachsenburg

, 2020

DIE VILLA
Hinter dem ehemaligen Spinnereigebäude und Fabrikhof abgerückt steht die „Kommandantenvilla“ auf der Zschopauinsel. Sie ist Teil der Gedenkstätte Sachsenburg. Ursprünglich als Wohnhaus des Spinnereifabrikanten entworfen und errichtet, fehlt dem Gebäude jegliche militärische Attitüde, die der Name „Kommandantenvilla“ suggeriert: ein schlichtes, beinahe behäbiges Wohnhaus, das ehemals neben Obstbäumen und Gemüsebeeten auf dem umzäunten Grundstück stand und das seinerzeit einen herrlich freien Ausblick über die Zschopauinsel genoß, die als Parklandschaft vor dem bewaldeten Hang liegt. Im Rahmen der Entwicklung der Gedenkstätte Sachsenburg ist der Fokus der Betrachtung gegeben: das Gebäude wird als „Kommandantenvilla“ wahrgenommen und in Rede gehalten. Viele Geschichten haben sich dem Gebäude seitdem eingeschrieben: das Wohnen der Inhaberfamilie - die Lagerkommandantur- das Büro- und Betriebsgeschehen - ein Kindergarten - alles hatte unter dem Dach der Villa Raum gefunden.

ERHALT DES ZEITZEUGEN
Gebäude sind Speicher der Geschichte und kulturelles Gedächtnis, Waben der Zeit. Damit diese kommunizieren können, müssen sie erhalten und gepflegt werden. Auch die Villa ist ein Zeitzeuge der bewahrt werden muss. Ein Rückbau der Villa bis auf den Gebäudesockel kann keine Option sein, wenn es darum geht einen Ort zu schaffen, an dem Erinnerung und Gedenken stattfinden soll. Wenn Dach und innenliegende Wand- und Deckenkonstruktionen in unhaltbarem baulichen Zustand sind, können doch mit den Außenwänden wesentliche Teile der historischen Substanz und die von außen wahrzunehmende Erscheinung in Ihren Grundzügen erhalten werden. Dessen Entstehungsgeschichte sowie seine sichtbaren Narben und Spuren bilden zwar ein zeitliches Kontinuum ab das zur Veranschaulichung genutzt werden kann, jedoch erzeugt es kein holistisches Narrativ das über die Geschichte berichtet. Über die Form hinaus bedarf es daher der Erzählung um historische Ereignisse und Sachverhalte zu vermitteln und einen Ort der Geschichte und der Erinnerung zu schaffen

ORT DER GESCHICHTE UND DES ERINNERNS
Geschichte als Schichtung von zeitlichen, sich überlagernden Ereignissen ist fakten- und datenbasiert, und ihrem Wesen nach im Grunde objektiv. Erinnerung hingegen wird in der Gegenwart produziert.
Erinnerung ist ein gesellschaftlicher Prozess der Aushandlung und Kontextualisierung von Geschichte. Wie die Gesellschaft - oder die Erinnernden selbst- hat sie Position und Dimension die einem ständigem Diskursunterliegen und immer wieder neu ausgehandelt werden muss.
Als Ergänzung zu der im Aufbau befindlichen Ausstellung in den Räumlichkeiten des Spinnereigebäudes soll die Villa künftig in das Konzept der Gedenkstätte einbezogen werden. In der Dualität von Geschichte und Erinnerung bietet sich die Villa in ihrer erhaltenen materiellen und historischen Beschaffenheit geradezu an, dem Erinnern bzw. der Vergegenwärtigung von Erinnerung einen Ort zu geben und einen inklusiven, gesellschaftlichen und aktiven Raum zu erzeugen der sich auch überregional im Spannungsfeld historischer und gegenwärtiger Ereignisse bewegt.

ZWISCHEN INNEN UND AUSSEN
Die Villa ist eingebunden in das heterogene Spektrum der Zschopauinsel und sowohl Teil der alltäglichen baulichen und funktionalen Umwelt als auch der Sphäre der Gedenkstätte. Durch die Trennung des "Außen" und des Innen wird es möglich das Bauwerk in der Umgebung als Skulptur zu begreifen und im "Innen" ein isoliertes Gefäß zu schaffen, das den Besuchern einen angemessenen und ungestörten Raum zum Gedenken bietet.

TRANSFORMATION
Die Villa soll in Ihrer Erscheinung ein zur Skulptur stilisiertes Bauwerk werden. Die Umsetzung des Konzeptes erfolgt über minimalinvasive Eingriffe in die Umgebung und das Gebäude selbst. Die Villa wird von organischen Bestandteilen befreit und bis auf die Außenwände dekonstruiert. Zur Bewahrung des Zeitzeugnisses für die Gegenwart wird sie konserviert und geschützt, wobei die Spuren erfahrbar bleiben. Als Objekt in seiner Erinnerungsfunktion soll durch Verschluss der alten Öffnungen eine neue Nutzung markiert werden und das Innere vom Außen trennen. Die einheitliche dunkle Farbgebung entrückt es aus der Alltäglichkeit auf eine bildhafte Ebene.

UMGEBUNG
Die mit der Lagernutzung in Verbindung stehenden Bestandteile der Gedenkstätte sollen markiert und visualisiert werden. Der Appellplatz als wichtiges Bindeglied zwischen dem Fabrikgebäude und der Villa soll durch Stiefelabdrücke in Form von Fahrbahnmarkierung auf dem vorhandenen Asphalt inszeniert werden. Die Außenwandkonturen des abgebrochenen Heizhauses soll ebenfalls mittels Fahrbahnmarkierung kenntlich gemacht werden. Die Anhöhe im Norden hinter der Villa soll als „Hain“ mit Bäumen in einem orthogonalen Raster begrünt werden verweisen auf die Historie der Fläche. Zusätzlich dient diese als Kulisse für den Blick auf die Villa vom Appellplatz. Die bricht die Blickbeziehung zu den dahinter liegenden freizeit- und sportorientierten Nutzungen. Das ehemalige Grundstück ist wild begrünt und dient dem künstlich abstrahierten Exponat „Villa“ Rahmen und Bühne.

WEGEFÜHRUNG
Der primäre Zugang zum Gebäude führt über einen neu angelegten Holzsteg welcher die ehemalige Umzäunung der Villa markiert. Der genaue Verlauf wurde anhand historischer Pläne und Fotografien Rekonstruiert. Die Führung des Besucher um das Gebäude herum auf dem Gelände des ehemaligen Gartens ist Teil der Inszenierung, bedient Anforderungen an die Gleichstellung sowie Barrierefreiheit und lenkt den Besucherverkehr der Gedenkstätte gezielt über die dafür vorgesehen Flächen um das Gebäude herum. Der Steg mündet als Brücke in das Gebäude und führt über einen offenen und jederzeit zugänglichen Teil des Bauwerks zu den beiden Innenräumen. Eine Verbindung zum alten Eingang und der bestehenden Treppe in jener Flucht ermöglicht einen Rundgang zur Erkundung des wild wachsenden Gartens.

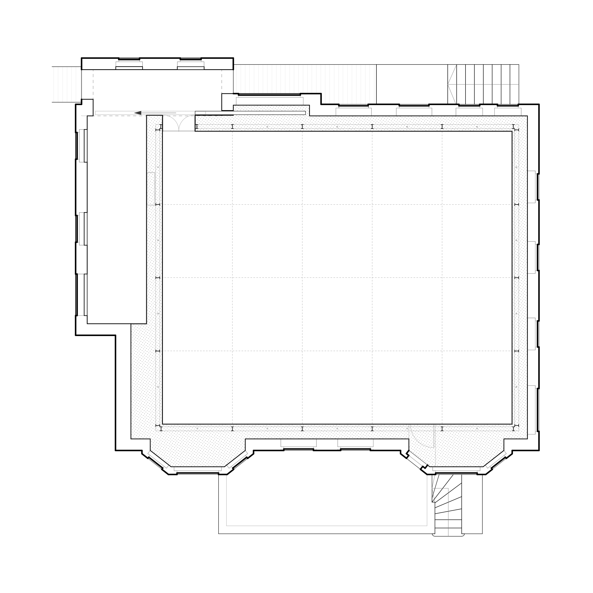
RÄUME
Im entkernten Inneren der Villa sind 3 Räume geplant. Die Anordnung dieser reagiert auf die historische Kubatur und wird durch raumhohe Trennwände unterteilt.
Der Hauptzugang erfolgt über die Brücke zum Vorraum, welcher sich im eingeschossigen Erker befindet. Dieser permanent geöffnete Raum gibt den Blick auf das Fabrikgebäude und den ehemaligen Appellplatz frei. Vom Vorraum aus gelangt man zu den beiden Haupträumen, welche durch eine Schiebewand verschlossen werden können.

RAUM DER GESCHICHTE
Der Raum der Geschichte ist eine Dauerausstellung, welche in verschiedenen Formaten die umfangreiche Geschichte der Villa mit Bildern, Dokumenten und Texten ausführlich darstellt. Der haushohe, von oben natürlich belichtete Raum wird durch die unterschiedliche Behandlung der Wandoberflächen charakterisiert. Hier stehen sich Alt und Neu sichtbar gegenüber. Einerseits als entkernte, gereinigte und eingefärbte Altbauwand, die Spuren von Fenstern und Decken in sich trägt und andererseits die neu errichtete Innenwand in ihrer modernen schlichten Erscheinung.

RAUM DER ERINNERUNG
Der Raum der Erinnerung ist ein Möglichkeitsraum mit multifunktionalen Eigenschaften. Wechselnd bespielt, dient er der thematischen Erweiterung und Ergänzung der vorhandenen Räume der Gedenkstätte Sachsenburg. Das Erinnern soll hier auf unterschiedliche Weise mit unterschiedlichen Formaten kontextualisiert werden. Er soll als Lern- und Bildungsort Anreize bieten, sich mit der Vergangenheit auseinanderzusetzen. Der von außen vollständig isolierte Raum füllt in seiner Proportion das gesamte Innere der Villa und ist als neutraler Raum konzipiert in dem audiovisuelle Medien für Ausstellung, Vorträge und Vorführungen vorgehalten werden. Die raumhohen, transluzenten Wände eignen sich zur Hinterleuchtung und als Projektionsfläche. Über ein Traversensystem in der Decke können zusätzliche Objekte, Installationen oder Lichttechnik.

KONSTRUKTION
Nach Abbruch der organischen Bauteile, Decken, Wände und des Dachs werden die zu erhaltenden Außenwände vom Hausschwamm saniert. Diese liegt auf den Außenwänden und den teilweise zu erhaltenden massiven Kellerwänden um die Kräfte des Erddrucks aufzunehmen und das Gebäude auszusteifen. Das entkernte Bauwerk erhält auf Niveau des alten Erdgeschossfußbodens eine neue Stahlbetondecke als monolithisches Bauteil. Als Trägerrostkonstruktion aus Stahl wird ein neues Dach hergestellt, welches den gesamten Innenraum freitragend überspannt und auf den Außenwänden stützt. Die Unterkonstruktion der inneren Trennwände aus Stahl trägt die abgehangene Decke mit eingelassener Traverse. Die Konstruktion wird mit transzluzenten Platten beplankt. Im umlaufenden Kranz unter der Decke wird Lichttechnik und Projektoren untergebracht.